登录
|
注册
家园首页
行业讨论
技术问答
施工队伍
工程项目
排行榜
钢结构招聘网
梁生
2021-11-9
关注
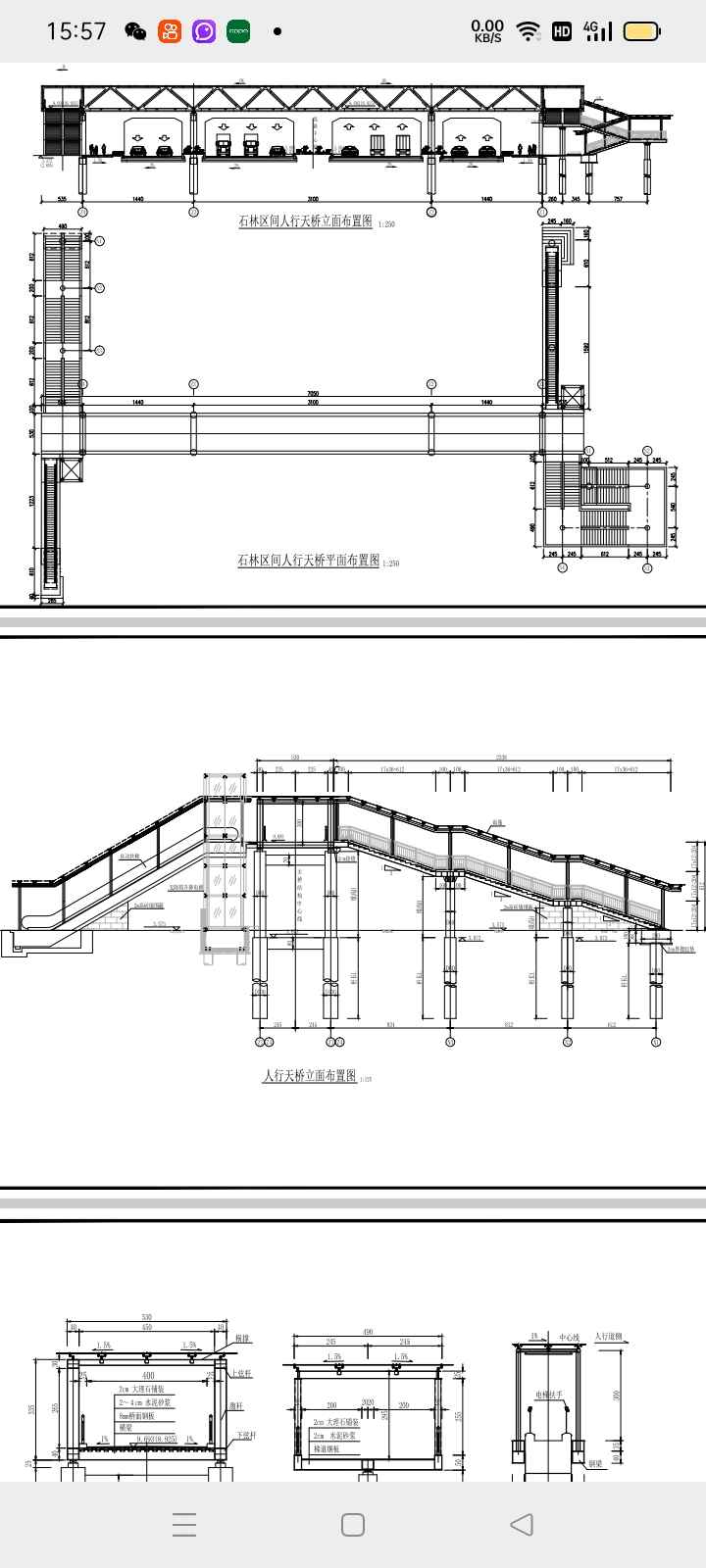
佛山天桥和钢结构雨蓬工程
联系电话:
点此查看电话(1积分)
11
使用说明
此信息设置置顶后可以优先排序、公开联系方式、开放评论咨询。
此信息的置顶、刷新、修改、删除:请到“我的家园 > 我的发布”栏目操作。或者
点此跳转
发表帖子
下载手机APP,随时参与讨论